2026-02-14 新闻动态 116
粤进深 严明会中海在深圳的第二个“玖章”高端产品——中海云颂玖章,户型图曝光。
面积段为建面约106-108-128-143㎡,全部是“+1房”设计,得房率拉满。
其中,建面约106-108㎡3+1房两卫,经典竖厅布局,多功能房可灵活改造为书房、儿童房、茶室或健身区等。

建面约128㎡4+1房两卫,横厅设计,南北通透,自带入户走廊,户型敞阔。

建面约143㎡4+1房两卫,全明通透,主卧配独立衣帽间,客厅、次卧连通南向大阳台,改善需求一步到位。

户型基本都是南向设计,且大部分都能无遮挡看梅林山景。
中海云颂玖章位于龙华梅林关,号称“一站到福田”。
项目地块,是中海在2025年7月7日,拿下的龙华梅林关民治街道A802-0309地块。
当时吸引了中海、华润、深铁、招商、越秀、天健6家实力房企的激烈争夺。
最终,经过102轮竞价,被中海以总价23.7亿元成功夺得。
成交楼面价38795.22元/㎡,溢价率约40.74%。
地块也是2025年深圳土拍少有超过百轮竞价的几宗地块之一。
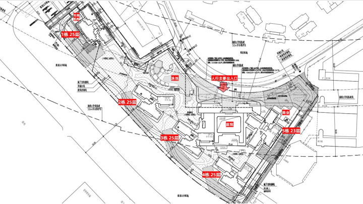
此前,项目总平图已公示。
根据规划指标,云颂玖章建设用地面积2.18万㎡,总建筑面积9.2万/㎡,容积率3.0,计容积率建筑面积6.46万㎡。
规划5栋23-25层的高层住宅,纯商品房小区,约491套房源。
其中,套内建筑面积小于90㎡户型234户,占48%;套内建筑面积大于90㎡户型257户,占52%。
1-4栋为25层,一层四户设计;5栋为23层,一层五户设计。

项目开发主体为中海深圳房地产开发有限公司。
该公司成立于1998年,由中海地产集团有限责任公司100%持股。
公司董事长为刘显勇,经理为赵亮。
刘显勇同时也是中海发展副总裁。
上一篇:主力资金流入前20: 太平洋流入10.98亿元、昆仑万维流入6.21亿元
下一篇:没有了